齐鲁网·闪电新闻10月3日讯 近日,济南市自然资源和规划局公布了英雄山片区01街区和济南市八里桥片区04街区的控制性详细规划。

英雄山片区01街区东至中光明街,南至建宁路,北至经十路,西至阳光新路,规划总面积约为25.59公顷,居住人口1.32万人,除西南角怡心苑小区外,建设规模约57.67万平方米。


(济南市英雄山片区01街区土地使用规划图)


(济南市英雄山片区01街区道路、地表水体、防护性绿化带保护控制图)
该街区以城市居住和商业商务服务功能为主,规划形成“一心、两轴、一组团”的规划结构,经十路和阳光新路交叉口形成商业商务核心,沿经十路和阳光新路形成城市发展轴线,南部形成居住商服组团。规划公共服务设施包括1处18班幼托、1处24班小学等。


(济南市英雄山片区01街区地块划分与控制指标图)

英雄山片区01街区控制性详细规划草案自2021年9月25日起,在槐荫区青年公园街道办事处现场公示栏、济南市自然资源和规划局网站进行为期30日的公示。

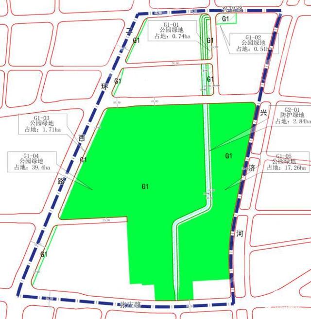
八里桥片区04街区位于八里桥片区中西部,东至兴济河,南至张庄路,北至幸福街,西至二环西路,规划总面积约120.54公顷。街区以市级森林公园为主要功能,周边以居住功能为主,规划城市建设用地118.84公顷,居住人口1.59万人,总建设规模约81.87万平方米。


(济南市八里桥片区04街区土地使用规划图)


(济南市八里桥片区04街区道路、地表水体、防护性绿化带保护控制图)
该街区规划形成“一心、一轴、一带、两区”的规划结构,街区中部结合森林公园形成区域绿化核心,沿二环西路形成城市发展轴线,东部紧邻兴济河滨水景观带,以森林公园划分北部居住组团和南部居住商服组团。


(济南市八里桥片区04街区地块划分与控制指标图)
该街区规划公共服务设施包括2处9班幼托、1处6班幼托、1处36班九年一贯制、3处现状行政办公用地等。市政公用设施包括1处110KV变电站、1处现状西郊水厂。

八里桥片区04街区控制性详细规划草案自2021年9月25日起,在匡山街道办事处现场公示栏、济南市自然资源和规划局网站进行为期30日的公示。
闪电新闻记者 李金彦 报道
| Powered By Z-BlogPHP 1.7.3